Specification
Fibre pre wired
Exposed brickwork fabric
Full height crittal glazed partitions
High grade kitchenette on each floor
Self-contained WC’s on each floor
VRF air conditioning system with fresh air ventilation
Exposed brickwork fabric
Full height crittal glazed partitions
High grade kitchenette on each floor
Self-contained WC’s on each floor
VRF air conditioning system with fresh air ventilation
Generous floor-to-ceiling heights
3 compartment perimeter trunking
Plasterboard ceilings with energy efficient LED lighting
New 7 person passenger lift
2 showers
3 compartment perimeter trunking
Plasterboard ceilings with energy efficient LED lighting
New 7 person passenger lift
2 showers
Availability
Floor
SQ FT
SQ M
AVAILABILITY
Fourth
797
74
LET
Third
850
79
LET
Second
850
79
LET
First
840
78
LET
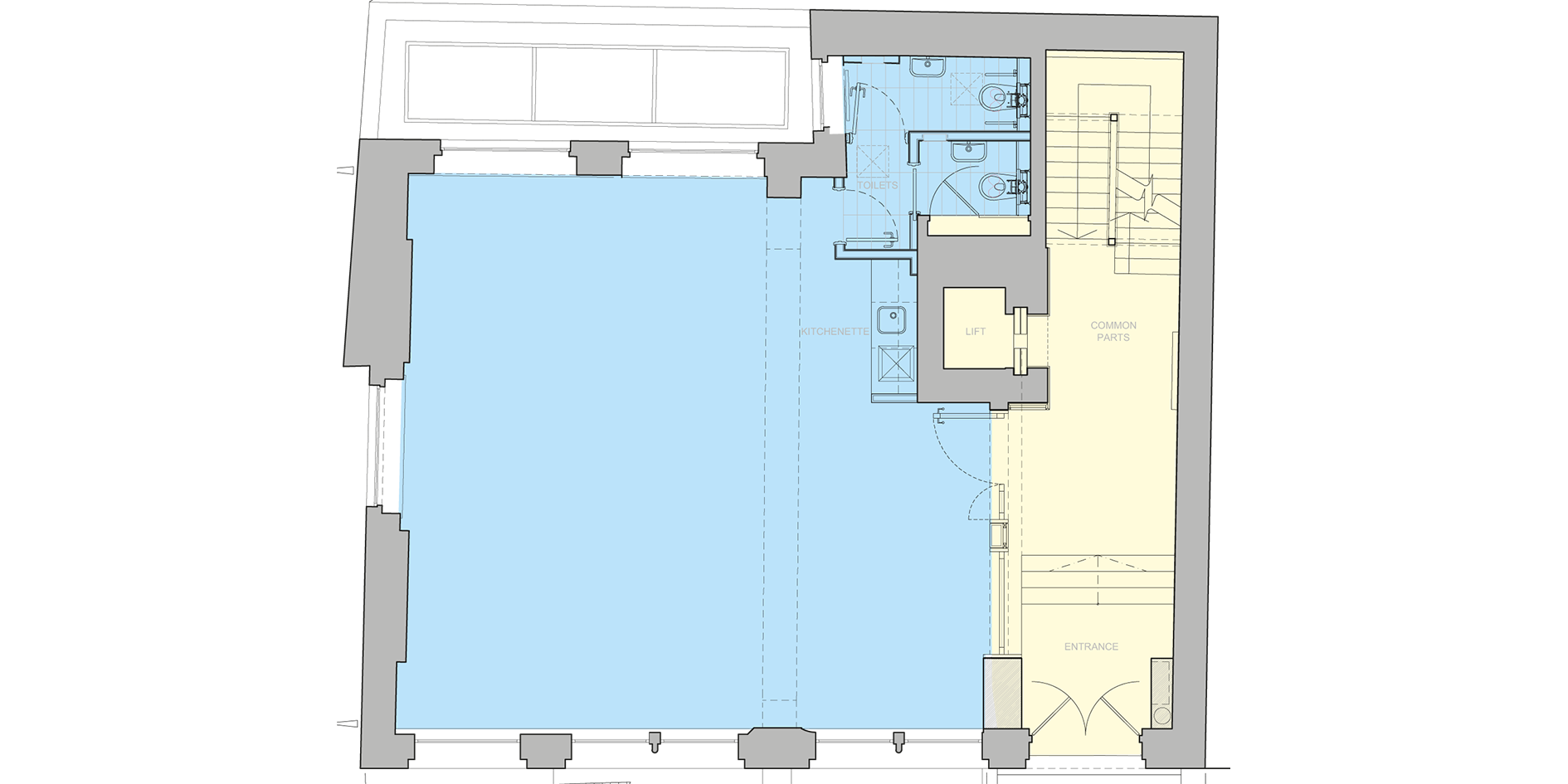
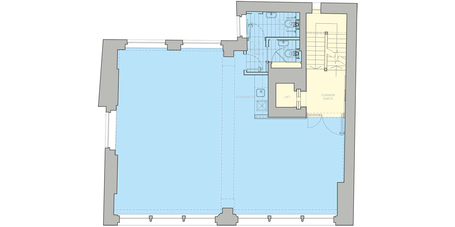
Ground
710
66
AVAILABLE
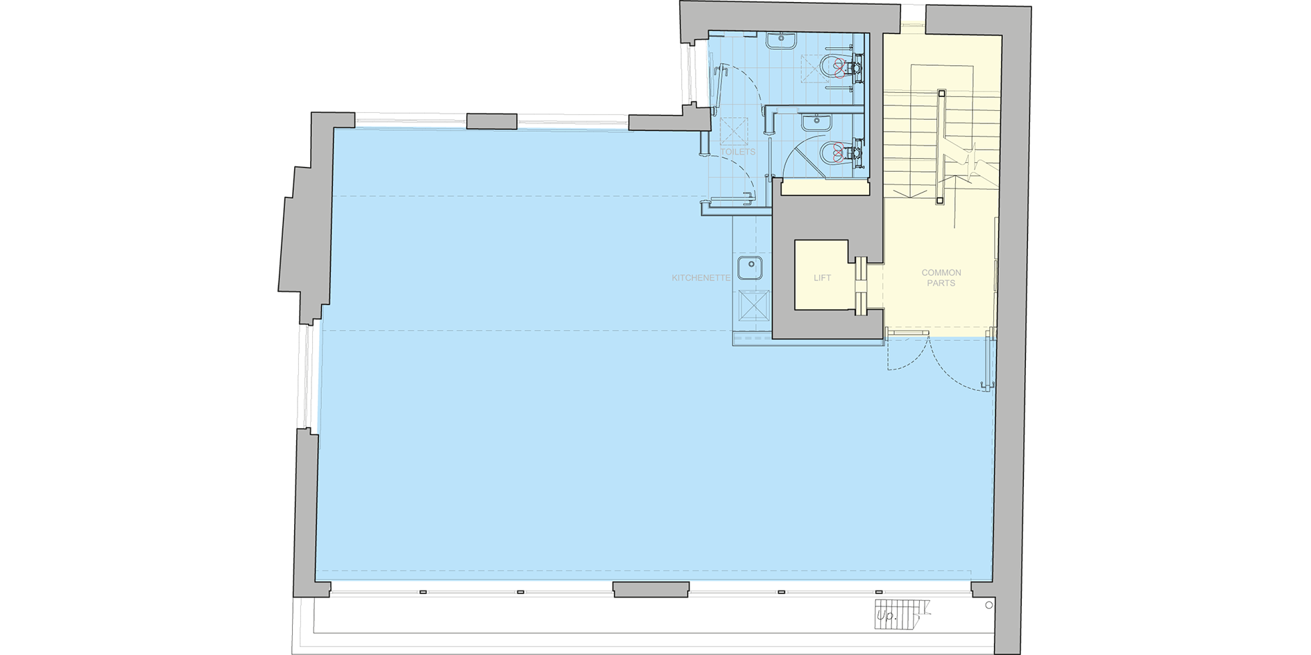
Lower Ground
883
82
LET
4,390
458



























